Lo esencial
- Categoría: Venta
- Tipo: Piso
- Estado : A reformar
- Dormitorios: 4
- Baños : 0
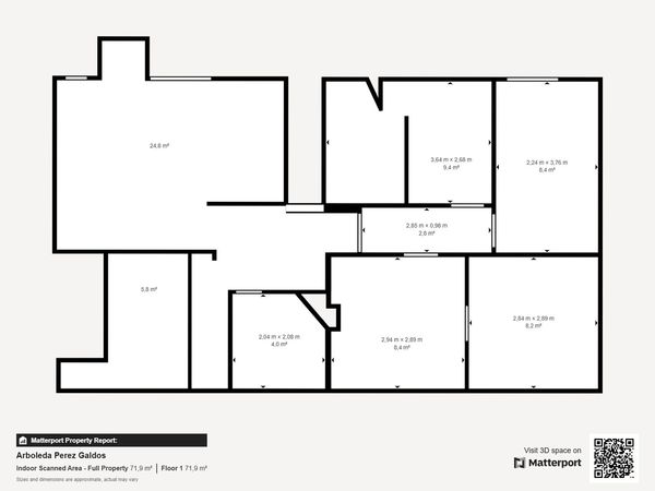
- Área : 80 m²
Descripción
-
Descripción:
¡Descubre el potencial infinito de esta vivienda en La Arboleda!
Inmobiliaria Portugalete te invita a explorar esta oportunidad única: un piso en segunda planta de 80 m², ubicado en el corazón de La Arboleda, que combina espacio, versatilidad y la posibilidad de convertirse en tu proyecto soñado. Ideal para mentes creativas, inversores audaces o familias que buscan un hogar adaptable a sus necesidades.
Un espacio lleno de posibilidades
Imagine un lienzo en blanco donde cada rincón puede transformarse bajo su visión. Esta vivienda, lista para reformar, ofrece:4 habitaciones amplias y luminosas, ideales para crear dormitorios, despachos o zonas multifuncionales.
Un salón-comedor independiente que invita a momentos de convivencia, con conexión a tres balcones que regalan luz natural y vistas a la serena zona residencial.
Cocina funcional y baño, con estructuras sólidas pero listos para renovarse con diseños modernos.
Despensa incorporada, un tesoro práctico para almacenamiento adicional.
¡Segregable en dos viviendas! Un plus exclusivo: conviértela en dos hogares independientes (perfecto para alquiler, negocio familiar o compartir con generaciones), maximizando su rentabilidad o adaptándose a su estilo de vida.
Ubicación: tranquilidad y conexión en La Arboleda
Vivir aquí es disfrutar de lo mejor de ambos mundos:Entorno natural: Rodeado de áreas verdes y lejos del bullicio urbano, ideal para quienes buscan paz sin renunciar a servicios básicos.
Conexión estratégica: A pocos minutos de comercios locales, parques y transporte público, con enlaces rápidos a Portugalete, Trapagaran y Bilbao.
Perfecto para… Amantes del senderismo (cerca de rutas naturales), familias que valoran la seguridad de una zona residencial o inversores que apuestan por áreas en crecimiento.
Transforma, crea, vive
¿Sueñas con una cocina abierta con isla? ¿O dos estudios modernos para alquilar? Aquí no hay límites. Los tres balcones ofrecen rincones para desayunos con vistas o jardines urbanos, mientras la despensa resuelve el almacenamiento diario. La reforma es tu oportunidad para imprimir carácter.¡No dejes que se te escape!
Mostrar toda la descripción
Propiedades con este potencial no duran mucho en el mercado. Agenda una visita hoy mismo y recorre cada espacio con nuestros expertos, que te guiarán con ideas para sacarle el máximo partido.
